Key details
- 3 Reception Rooms
- 4 Bedrooms
- 2 Bathrooms
- Energy Efficiency: D (63)
- View property schedule
Overview
Ingleside is a remarkable Georgian Gothic style house built circa 1817 and situated in the heart of Elgin on West Road. Designed by esteemed architect James Gillespie Graham who also designed Dr Gray's Hospital, Ingleside is brimming with potential and presents a unique opportunity for those seeking historical charm. As a Grade A listed property, it boasts significant architectural detailing including Gothic arch moulds to the canted bay window, Gothic rib moulding in the hallway and original Gothic internal doors. Set in around two thirds of an acre of mature garden grounds, Ingleside has a countryside feel whilst being a short walk to town.
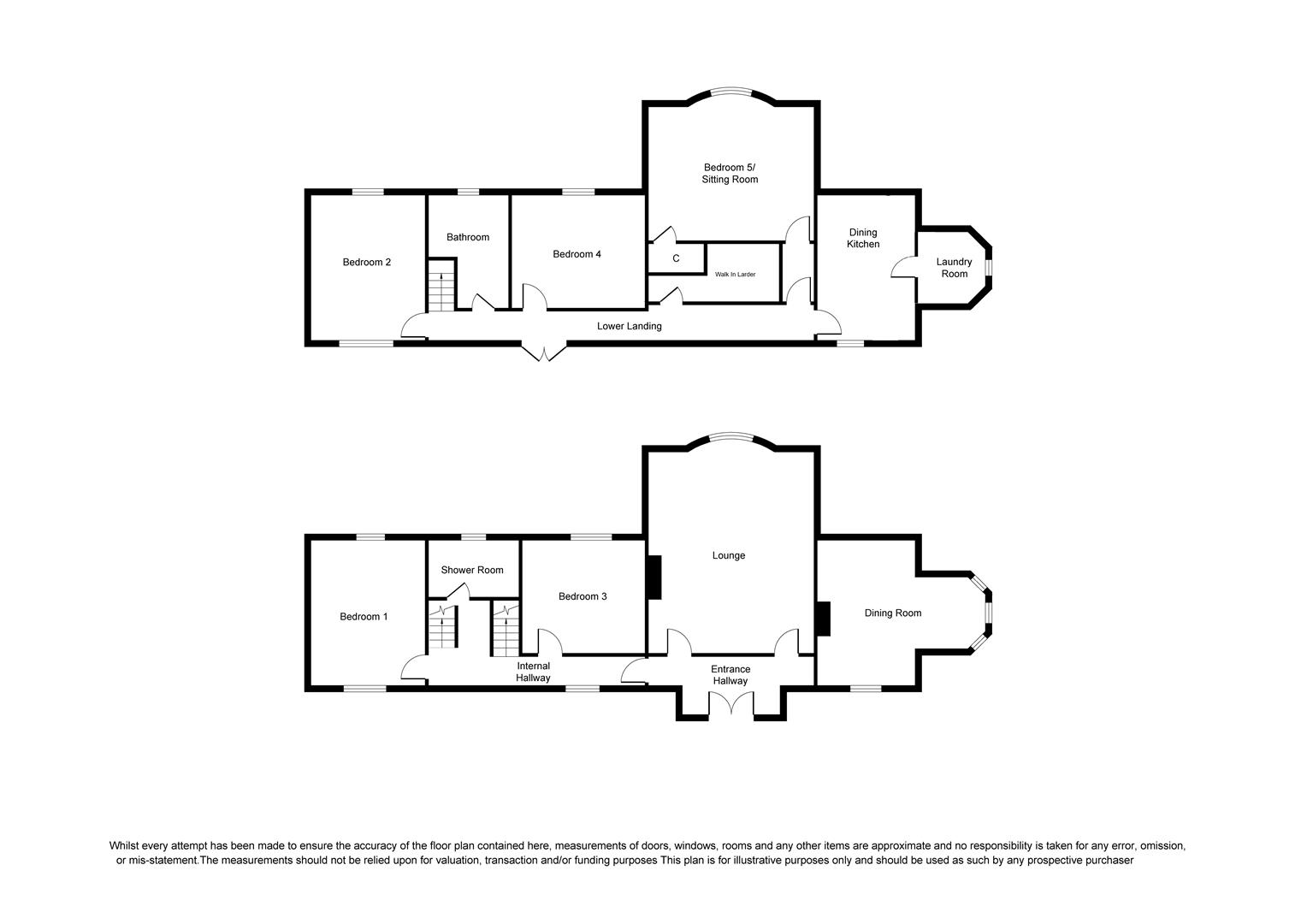
ENTRANCE HALLWAY
5.04mx 3.35m (16'6"x 10'11")
Original Gothic entrance door; Gothic rib vaulted ceiling; fitted carpet; ceiling light fitting.
LOUNGE
8m approx x 4.93m (26'2" approx x 16'2")
North facing long window with Gothic arch moulds; fireplace with marble surround and fitted gas fire; concealed dumb waiter from the kitchen on the ground floor to the lounge and dining room; fitted carpet; ceiling light fitting.
DINING ROOM
6m approx x 4.92m (19'8" approx x 16'1")
Gothic arched bay window under Gothic arch moulded ceiling to the east; fireplace with gas fire; concealed dumb waiter; fitted carpet; two ceiling light fittings.
INNER HALLWAY
5.83m x 1.34m (19'1" x 4'4")
Window to front; fitted carpet; two ceiling light fittings.
BEDROOM 1
5.26m x 3.47m (17'3" x 11'4")
Double aspect to front and rear; fitted bedroom furniture; plumbed in sink; fitted carpet; ceiling light fitting.
BEDROOM 3
3.39m x 3.27m (11'1" x 10'8")
Window to rear; fireplace; fitted carpet; ceiling light fitting.
SHOWER ROOM
2.25m x 2.06m (7'4" x 6'9")
Window to rear; sink; WC and shower cubicle with mains shower; tile effect flooring; ceiling light fitting.
STAIRCASE & LOWER LANDING
The lower landing gives access to a larder room with fixed cupboards and shelving and a separate boiler room housing the gas central heating boiler and hot water tank; fitted carpet; ceiling light fittings.
BEDROOM 2
5.28m x 3.36m (17'3" x 11'0")
Window to rear; shelved recess; plumbed in sink; fitted carpet; ceiling light fitting.
BEDROOM 4
3.59m x 2.90m (11'9" x 9'6")
Window to rear; plumbed in sink; fitted carpet; ceiling light fitting.
BATHROOM
3.59m x 2.90m (11'9" x 9'6")
Window to rear; built-in cupboard; sink; WC and bath; newly fitted vinyl flooring; ceiling light fitting.
SITTING ROOM/BEDROOM 5
5m approx x 4.79m (16'4" approx x 15'8")
Window to rear; built-in cupboard; fireplace with gas fire; fitted carpet; ceiling light fitting.
DINING KITCHEN
4.86m x 3.64m (15'11" x 11'11")
Window to front; fitted kitchen in pine effect; gas fired Aga; slot-in dishwasher; fitted carpet; three ceiling light fittings.
LAUNDRY ROOM
3m x 2.48m (9'10" x 8'1")
Window to side; stainless steel sink; plumbed in washing machine; fridge freezer and tumble dryer; ceiling clothes pulley system; stone floor; ceiling light fitting.
GARAGE
Good size tandem garage with access from West Road. Three windows to side; wooden door; personnel door to side.
OUTSIDE
Ingleside is set in around two thirds of an acre of garden ground which is mainly laid to lawn with many mature trees and shrubs giving a good degree of privacy and bound by dry stone walling. Winding pathways lead you round the garden to many hidden nooks and crannies.
NOTES
Included in the asking price are all carpets and fitted floor coverings, all light fittings, the bathroom and shower room fittings; the gas Aga and slot in dishwasher in the kitchen and the washing machine, tumble dryer and fridge freezer in the laundry room.
Property location
Get more information
Important Information for Prospective Purchasers
This schedule is intended only to help you decide whether to view the property. We always recommend you view the property personally.
The information is believed to be correct, but it is not warranted and is not to form part of any contract of sale. All dates, distances, areas and room sizes noted are approximate and for use as a general guide only. Prospective purchasers should satisfy themselves as to the working condition or otherwise of any equipment such as central heating or kitchen appliances.
This schedule should not be taken as a comment on the condition of the property. This is a matter for your surveyor and we recommend that once you have found a property you are interested in, you obtain a survey report. We can provide details of surveyors if required.
Interested parties are advised to note their interest through their solicitor as soon as possible so that they can be informed if a closing date is fixed. Noting interest does not place any obligation on the seller to set a closing date or to give any noted interests the opportunity to offer. Whilst every effort will be made to advise noted interests of any closing date set, this cannot be guaranteed.
No responsibility will be accepted for expenses incurred by parties who have noted interest but do not get an opportunity to offer, or for any expenses incurred traveling to properties which have been sold or withdrawn.
Excellent service from Will Davidson and colleagues, helping with a long-distance purchase of a first home. Will is very professional, conscientious, and courteous, and his communications are unfailingly clear, thorough, and helpful. Cannot recommend highly enough.



