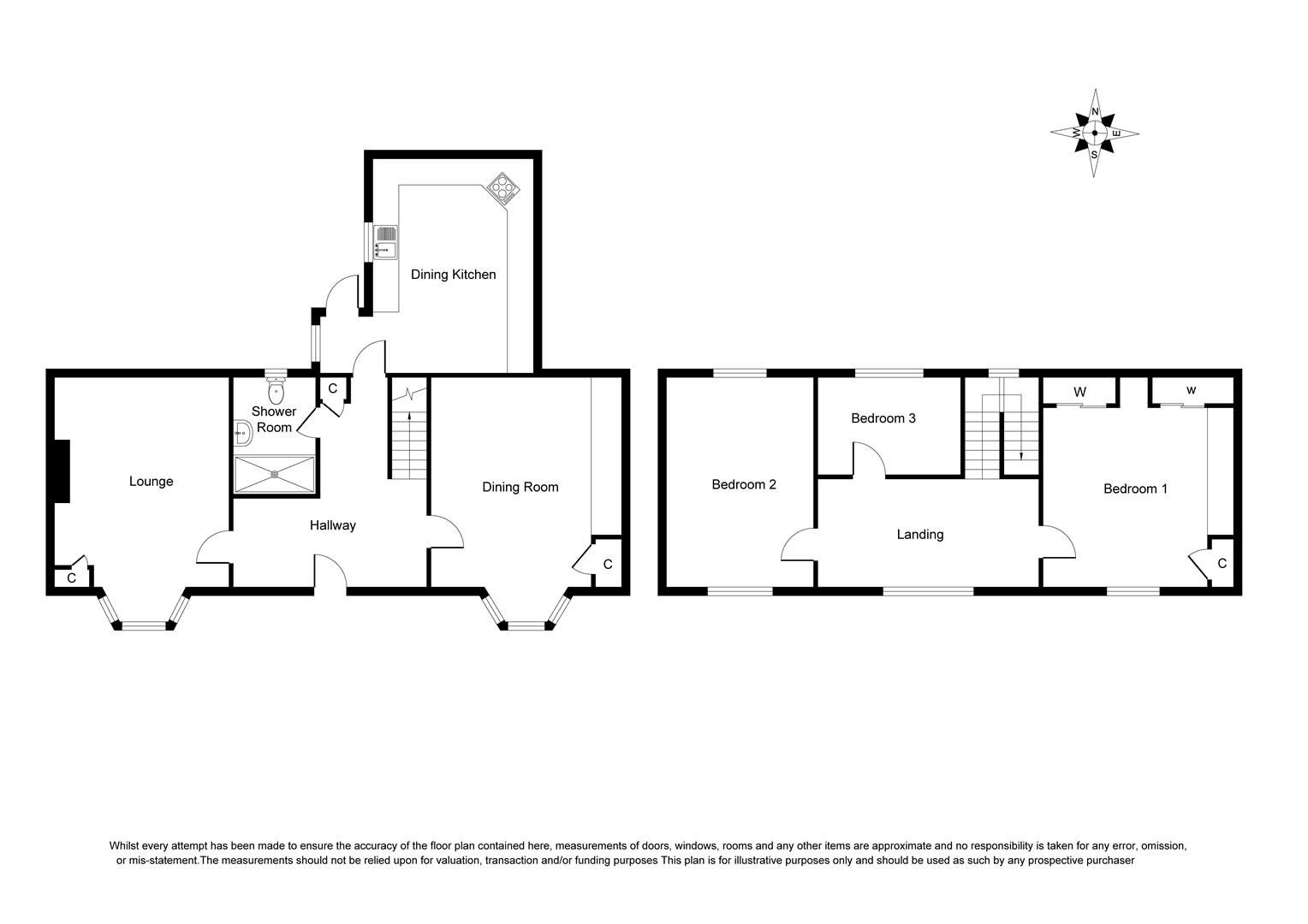
Key details
- 2 Reception Rooms
- 3 Bedrooms
- 1 Bathroom
- Energy Efficiency: E (46)
Overview
Traditional south facing semi-detached house with pink granite frontage situated on the outskirts of the popular Speyside town of Dufftown with views over to the countryside and hills beyond. The accommodation comprises entrance hallway, lounge, dining room, dining kitchen, three bedrooms and a shower room. The property further benefits from double glazing, gas central heating, a substantial garden, garage/workshop and off-street parking.
ENTRANCE HALLWAY
uPVC and glazed entrance door; shelved storage cupboard; tile effect flooring; ceiling light fitting.
LOUNGE
4.86m x 4.52m (15'11" x 14'9")
Bay window to front; tiled fire surround with open fire; fitted carpet; ceiling light fitting.
DINING ROOM
4.78m x 3.89m (15'8" x 12'9")
Bay window to front; electric fire and surround; shelved recess; fitted carpet; ceiling light fitting.
SHOWER ROOM
3.43m x 1.37m (11'3" x 4'5")
Window to rear; sink; WC and shower enclosure with mains shower; chrome towel radiator; water resistant flooring; ceiling light fitting.
DINING KITCHEN
4.50m x 3.50m (14'9" x 11'5")
Window to side; fitted kitchen in light wood effect; built-in four ring gas hob; double built-in electric oven and hood; Bosch fridge freezer; Hotpoint washing machine; tile effect flooring; ceiling light fitting.
REAR VESTIBULE
Window to side; base units to match the kitchen; tile effect flooring; ceiling light fitting.
STAIRCASE AND LANDING
Double aspect to front and rear; door leading to stairway to attic rooms; painted floorboards with carpet runner; ceiling light fitting.
BEDROOM 1
5.12m x 3.93m (16'9" x 12'10")
Window to front; fitted wardrobe and drawer unit; two sets of double built-in wardrobes with dressing table; fitted carpet; ceiling light fitting.
BEDROOM 2
4.83m x 3.07m (15'10" x 10'0")
Double aspect to front and rear; shelved recess; fitted carpet; ceiling strip light.
BEDROOM 3
3.41m x 3.07m (11'2" x 10'0")
Window to rear; fitted carpet; ceiling light fitting.
GARAGE
Garage and workshop with up and over door; personnel door; power and light.
OUTSIDE
The garden to the front is laid to lawn with mature planted borders. The rear garden has a substantial area of ground to the rear of the garage which is grassed and has a selection of mature fruit trees.
A shared drive leads to the courtyard located between the property and the garage which provides off-street parking for several cars.
NOTES
Included in the asking price are all carpets and fitted floor coverings; all light fittings, all shower room fittings; the double electric oven, four ring gas hob and hood, Bosch fridge freezer and Hotpoint washing machine in the kitchen.
Property location
Get more information
Important Information for Prospective Purchasers
This schedule is intended only to help you decide whether to view the property. We always recommend you view the property personally.
The information is believed to be correct, but it is not warranted and is not to form part of any contract of sale. All dates, distances, areas and room sizes noted are approximate and for use as a general guide only. Prospective purchasers should satisfy themselves as to the working condition or otherwise of any equipment such as central heating or kitchen appliances.
This schedule should not be taken as a comment on the condition of the property. This is a matter for your surveyor and we recommend that once you have found a property you are interested in, you obtain a survey report. We can provide details of surveyors if required.
Interested parties are advised to note their interest through their solicitor as soon as possible so that they can be informed if a closing date is fixed. Noting interest does not place any obligation on the seller to set a closing date or to give any noted interests the opportunity to offer. Whilst every effort will be made to advise noted interests of any closing date set, this cannot be guaranteed.
No responsibility will be accepted for expenses incurred by parties who have noted interest but do not get an opportunity to offer, or for any expenses incurred traveling to properties which have been sold or withdrawn.
Being strangers to buying a home, it was important that we had a knowledgeable, steady, and reliable hand throughout the process. Will Davidson made it seem very simple and enjoyable, from our initial offer to the final handing over of the keys. We can't recommend him enough and look forward to working with him again in the future.



