Key details
- 2 Reception Rooms
- 4 Bedrooms
- 4 Bathrooms
- Energy Efficiency: C (74)
- View property schedule
Overview
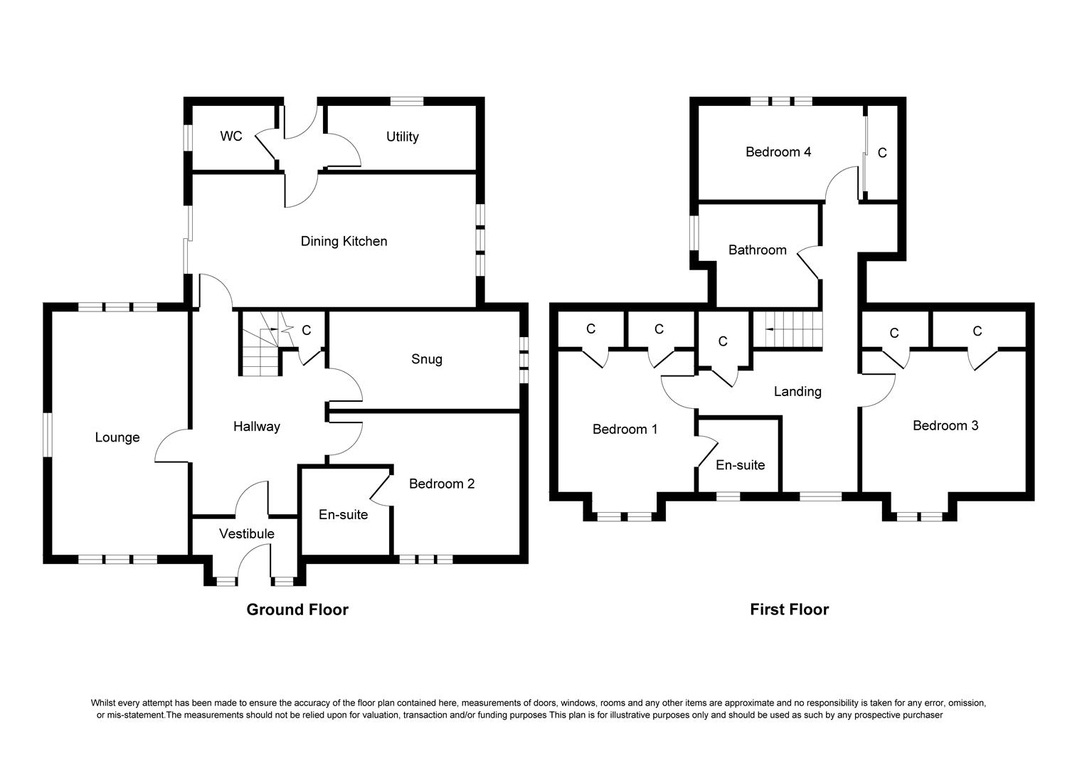
Cor Valley is situated in a peaceful rural location yet a short drive from both Lhanbryde and Elgin. The property which was built in 2003 is finished to a high standard with many upgrades by the current owners including triple glazing and Summer house with outdoor Chesney wood burner/barbecue. The accommodation comprises on the ground floor, entrance vestibule, hallway, lounge, dining kitchen, utility room, guest WC, ground floor bedroom(en-suite), dining room/bedroom 5 and on the first floor, a spacious landing, three further double bedrooms(one en-suite) and a family bathroom. The property further benefits from triple glazing, oil central heating(new outdoor boiler in 2024), garage with fully lined room above; summer house, spacious garden and a driveway providing off-street parking for several cars.
ENTRANCE VESTIBULE
uPVC and glazed door with windows either side; wood effect flooring; ceiling light fitting.
HALLWAY
Spacious under stair storage cupboard; wood effect flooring; two ceiling light fittings.
LOUNGE
6.55m x 4.10m (21'5" x 13'5")
Double aspect to front and rear; recently fitted recessed log-burning stove; fitted carpet; ceiling light fitting.
DINING ROOM
4.20m x 3.25m (13'9" x 10'7")
Window to side; wood effect flooring; ceiling light fitting.
DINING KITCHEN
6.59m x 3.22m (21'7" x 10'6")
Window to side and French doors to decking area; fitted kitchen in hand painted solid Oak; Neff double built-in electric oven; hob and hood; integrated dishwasher and fridge freezer; ample space for dining table and chairs; ceramic tile flooring; inset ceiling spotlights.
REAR VESTIBULE
uPVC door to the rear; coir matting; ceiling light fitting.
UTILITY ROOM
3.60m x 1.50m (11'9" x 4'11")
Window to rear; range of base units; plumbing and space for washing machine and tumble dryer; range of coat hooks; wood effect flooring; ceiling light fitting.
GUEST WC
1.76m x 1.50m (5'9" x 4'11")
Window to side; sink and WC; wood effect flooring; ceiling light fitting.
GROUND FLOOR BEDROOM
3.26m x 3.24m (10'8" x 10'7")
Window to side; wood effect flooring; ceiling light fitting.
EN-SUITE SHOWER ROOM
1.85m x 1.80m (6'0" x 5'10")
Velux window to rear; sink; WC and shower cubicle with mains shower; Chrome towel radiator; wood effect flooring; ceiling light fitting.
STAIRCASE AND LANDING
Velux windows to front and side; built-in storage cupboard; fitted carpet; ceiling light fitting.
BEDROOM 1
4.50m x 3.80m (14'9" x 12'5")
Window to rear; two sets of built-in wardrobes; fitted carpet; ceiling light fitting.
BEDROOM 3
4.50m x 3.27m (14'9" x 10'8")
Window to front; two sets of double built-in wardrobes; fitted carpet; ceiling light fitting.
BEDROOM 4
3.74m x 3m (12'3" x 9'10")
Window to front; two sets of double built-in wardrobes; fitted carpet; ceiling light fitting.
BATHROOM
2.65m x 2.50m (8'8" x 8'2")
Velux window to side; vanity mounted sink and WC; whirlpool bath with shower over; wood effect vinyl; inset ceiling spotlights.
GARAGE
Roller door; window to rear; fixed staircase to loft room which has been floored and lined; power and light.
GARDEN
Cor Valley is set in generous garden grounds, mainly laid to lawn with mature shrubs and trees giving a good degree of privacy. A good size gravel driveway provides off street parking for several cars.
A wooden summerhouse with power and light lies to the rear of the garden with a covered decking area and a Chesney wood burner/barbecue
NOTES
Included in the asking price are all carpets and fitted floor coverings; all light fittings; all curtains and blinds (with the exception of those in the ground floor bedroom) all bathroom, both en-suite and guest WC fittings; the Neff double electric oven, hob, hood, integrated dishwasher and fridge freezer in the kitchen and the summerhouse, Chesney wood burner and the rotary clothes dryer in the garden.
Property location
Important Information for Prospective Purchasers
This schedule is intended only to help you decide whether to view the property. We always recommend you view the property personally.
The information is believed to be correct, but it is not warranted and is not to form part of any contract of sale. All dates, distances, areas and room sizes noted are approximate and for use as a general guide only. Prospective purchasers should satisfy themselves as to the working condition or otherwise of any equipment such as central heating or kitchen appliances.
This schedule should not be taken as a comment on the condition of the property. This is a matter for your surveyor and we recommend that once you have found a property you are interested in, you obtain a survey report. We can provide details of surveyors if required.
Interested parties are advised to note their interest through their solicitor as soon as possible so that they can be informed if a closing date is fixed. Noting interest does not place any obligation on the seller to set a closing date or to give any noted interests the opportunity to offer. Whilst every effort will be made to advise noted interests of any closing date set, this cannot be guaranteed.
No responsibility will be accepted for expenses incurred by parties who have noted interest but do not get an opportunity to offer, or for any expenses incurred traveling to properties which have been sold or withdrawn.
Stress-free and professional estate agency and conveyancing. Karen, Susan, and their teams at the Elgin office handled all aspects of the house marketing, sale, and conveyancing swiftly, professionally, without fuss, and offering value for money. The house sold in the first week! It's been a delight to work with Harper Macleod, as we have done, and will continue to do, with other departments and offices across Scotland. Strongly recommended.



