Key details
- 3 Reception Rooms
- 6 Bedrooms
- 3 Bathrooms
- Energy Efficiency: E (46)
- View property schedule
Overview
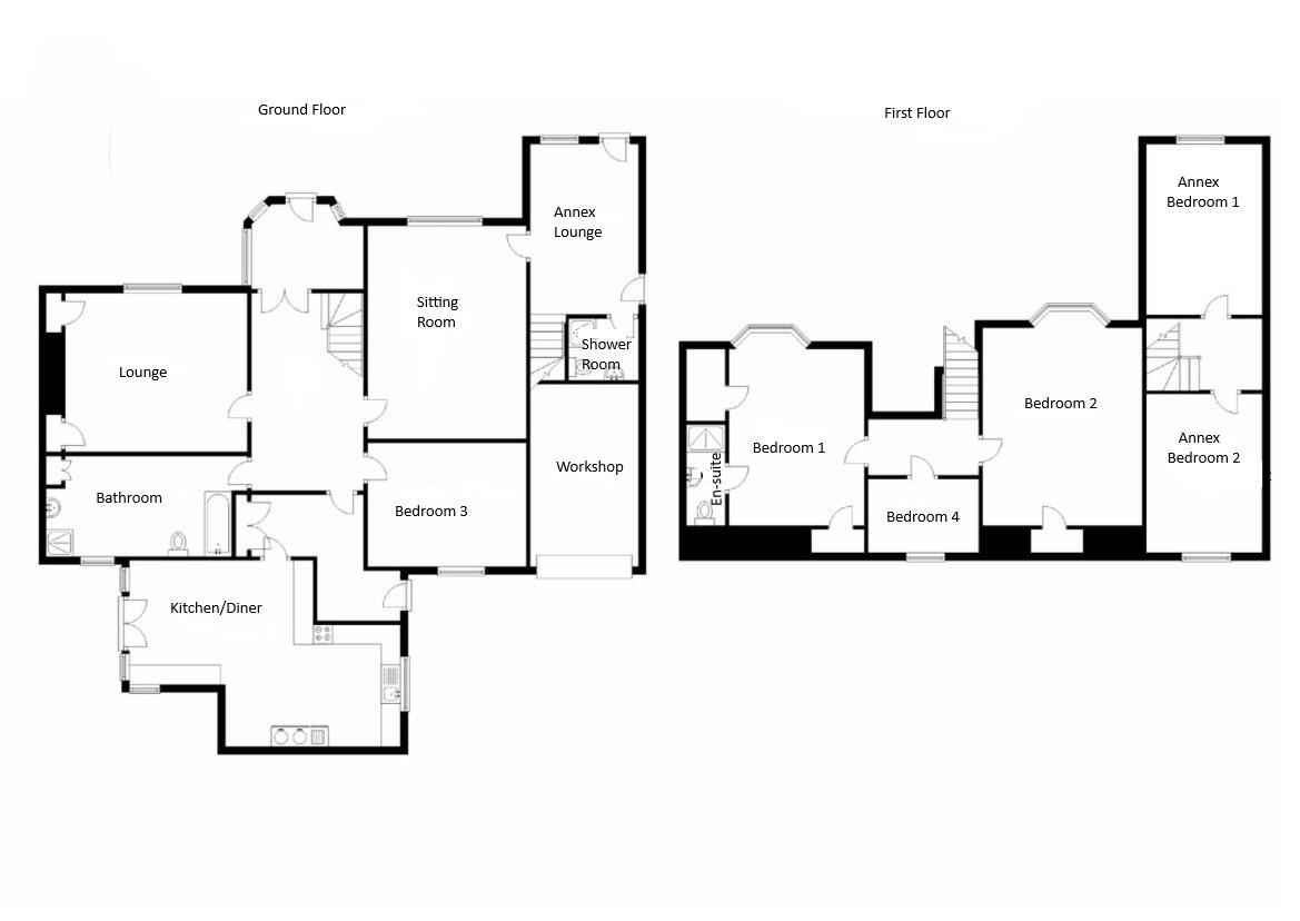
Burnbank is a detached four bedroom house with adjoining two bedroom annex which could easily be separated into a self contained apartment. Situated in a secluded setting between the villages of Garmouth & Kingston on Spey, this property is a peaceful haven & on the doorstep of many lovely countryside walks & Kingston Beach. The property further benefits from oil central heating, double glazing, substantial garden, garage & workshop.
FRONT VESTIBULE
Entrance door glazed on two sides with sliding door into the sitting room; wood effect flooring; ceiling light fitting.
SITTING ROOM
5.50m x 4.10m (18'0" x 13'5")
Large picture window to rear; feature fireplace with multi-fuel stove; solid Oak flooring; ceiling light fitting; sliding doors into the entrance vestibule.
DINING KITCHEN
6.10m x 4.80m (20'0" x 15'8")
Windows to either side; fitted kitchen in cream; Esse solid-fuel burning range; built-in electric oven; hob & hood; integrated dishwasher; slate flooring; inset ceiling spotlights; built-in storage cupboard; plumbing and space for washing machine.
LOUNGE
4.40m x 2.80m (14'5" x 9'2")
Full length windows & French doors to the rear garden. Wood effect flooring ceiling light fitting.
HALLWAY
3.84m x 2.96m (12'7" x 9'8")
Wood effect flooring; ceiling light fitting; skylight.
REAR VESTIBULE
Door to rear garden; built-in cupboard; slate floor; ceiling light fitting.
BEDROOM 3
5.10m x 4.13m (16'8" x 13'6")
Window to front; fitted bedroom furniture; fitted carpet; ceiling light fitting.
BATHROOM
4.20m x 2.60m (13'9" x 8'6")
Window to front; WC; sink; free standing bath; recessed shower cubicle with electric shower; built-in cupboard; tile flooring; wall light fittings.
STAIRCASE AND LANDING
Wooden staircase and landing; sky light window; wooden floor.
BEDROOM 1
4.40m x 3.00m (14'5" x 9'10")
Picture window to rear; wood effect flooring; ceiling light fitting.
EN-SUITE SHOWER ROOM
2.60m x 1.00m (8'6" x 3'3")
Internal room; sink & WC & shower cubicle with electric shower; vinyl flooring; wall light fitting.
BEDROOM 2
4.10m x 3.00m (13'5" x 9'10")
Window to front; wood effect flooring; ceiling light fitting.
BEDROOM 4
2.86m x 1.90m (9'4" x 6'2")
Velux window to front; wood effect flooring; wall light fitting.
ANNEX
SHOWER ROOM
1.80m x 1.60m (5'10" x 5'2")
Internal room; sink; WC & recessed shower cubicle; ceramic tile flooring; ceiling light fitting.
STAIRCASE & LANDING
Wood effect flooring.
WORKSHOP
Double entrance doors; power & light.
GARAGE
Up & over door; light.
OUTSIDE
The property is set in a substantial South facing garden with mature fruit trees & bushes, raised beds ideal for vegetable planting and looks over fields at the back.
NOTES
Included in the asking price: all carpets & fitted floor coverings; all light fittings; all bathroom, shower room & en-suite fittings; the oven; hob & hood, Esse solid-fuel burning range, integrated dishwasher, fridge/freezer and Bosch washing machine in the kitchen and the large timber potting shed, secure metal shed, and greenhouse in the garden.
Property location
Get more information
Important Information for Prospective Purchasers
This schedule is intended only to help you decide whether to view the property. We always recommend you view the property personally.
The information is believed to be correct, but it is not warranted and is not to form part of any contract of sale. All dates, distances, areas and room sizes noted are approximate and for use as a general guide only. Prospective purchasers should satisfy themselves as to the working condition or otherwise of any equipment such as central heating or kitchen appliances.
This schedule should not be taken as a comment on the condition of the property. This is a matter for your surveyor and we recommend that once you have found a property you are interested in, you obtain a survey report. We can provide details of surveyors if required.
Interested parties are advised to note their interest through their solicitor as soon as possible so that they can be informed if a closing date is fixed. Noting interest does not place any obligation on the seller to set a closing date or to give any noted interests the opportunity to offer. Whilst every effort will be made to advise noted interests of any closing date set, this cannot be guaranteed.
No responsibility will be accepted for expenses incurred by parties who have noted interest but do not get an opportunity to offer, or for any expenses incurred traveling to properties which have been sold or withdrawn.
I have just moved into my dream new property after a crazy experience with the sale and purchase of my previous property. My solicitor, Will, was unbelievable to deal with throughout the whole process. He was professional, informative, and knowledgeable. Long story short, there was a last‑minute mistake made by another member of the purchase chain. Will was brilliant throughout the chaos of the move‑in date being delayed, through no fault of his. In fact, he could not have been in a better position for the original date, as he had funds and paperwork ready to go. However, things didn’t pan out for that date, and Will did everything he could to get funds returned to the lender and back in his hands for the following Friday. This was not a very likely scenario, but he did everything possible to make it happen. My family and I are now settled in our forever home, and looking back, the whole process was under Will’s control. He kept us informed and calm throughout, and I cannot thank him enough.



