Key details
- 1 Reception Room
- 5 Bedrooms
- 3 Bathrooms
- Energy Efficiency: D (56)
- View property schedule
Overview
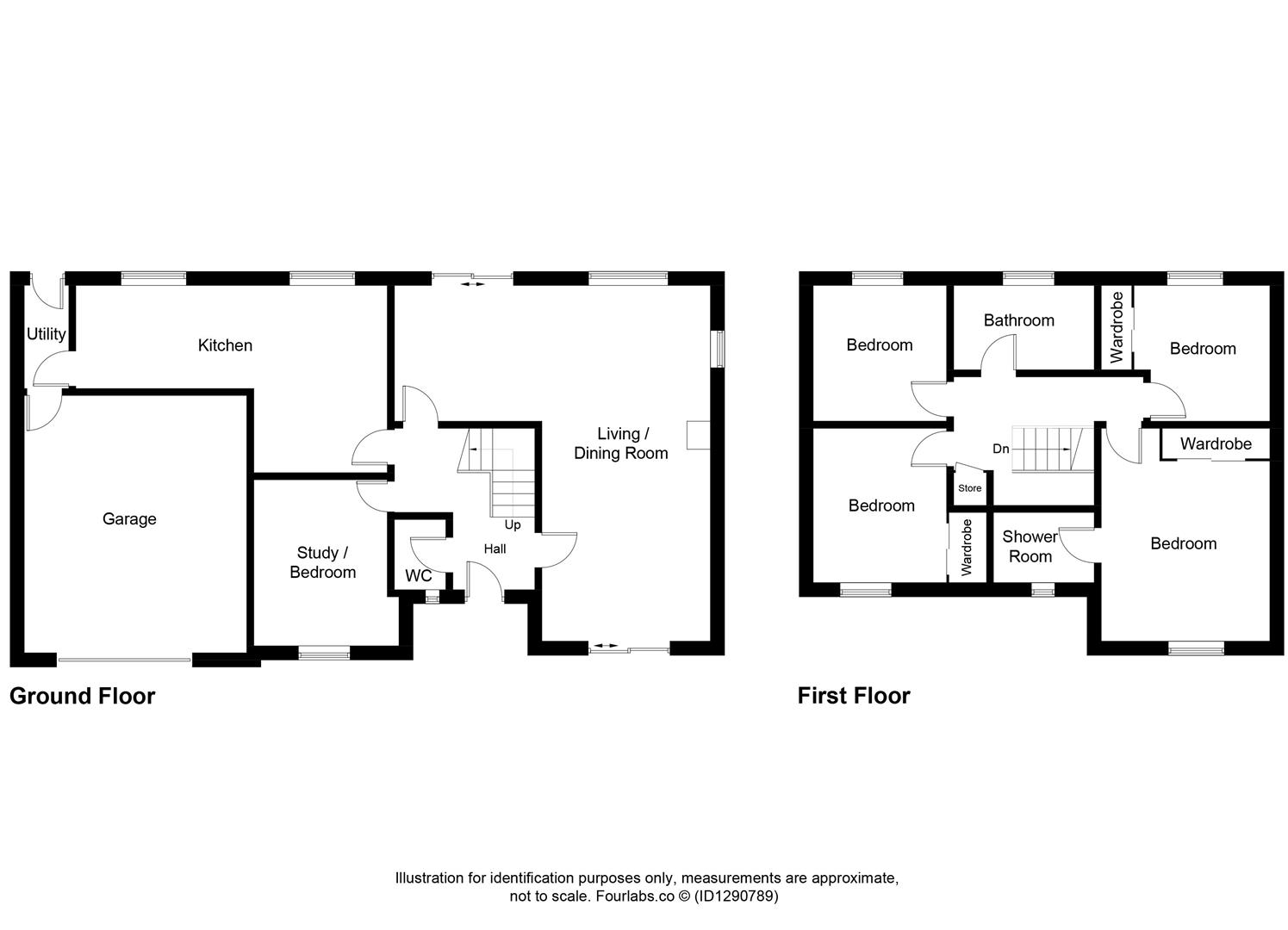
Achmelvich is located in the popular rural area of Pluscarden, with a back drop of mature trees and set in a substantial garden extending to around a third of an acre, with an additional quarter acre to the side, this 4/5 bedroom property is an ideal family home. The accommodation comprises entrance hallway, lounge/dining room, dining kitchen, utility room, guest WC, study/bedroom 5 and on the first floor four double bedrooms ( one en-suite) and a family bathroom.
The property further benefits from double glazing, oil central heating, double integral garage and a substantial garden.
ENTRANCE HALLWAY
Wooden and glazed entrance door; under-stair cupboard; fitted carpet; inset ceiling spotlights
LOUNGE/DINING ROOM
7.56m x 6.74m at longest and widest (24'9" x 22'1" at longest and widest)
L Shaped room; double aspect to front and rear; Sandstone fire surround with open fire; fitted carpet; inset ceiling spotlights; ceiling light fitting in the dining area.
DINING KITCHEN
5.97m x 4m at longest and widest (19'7" x 13'1" at longest and widest)
Two windows to rear; fitted kitchen in Oak finish; integrated dishwasher; slot in electric cooker; tile effect flooring; inset ceiling spotlights and ceiling light fitting.
UTILITY ROOM
2.24m x 1.71m (7'4" x 5'7")
Window to rear; range of base and wall units; plumbing and space for washing machine and tumble dryer; stainless steel sink; tile effect flooring; ceiling strip light.
GUEST WC
1.35m x 1.17m (4'5" x 3'10")
Window to front; sink; WC; tile effect flooring; ceiling light fitting.
STUDY/GROUND FLOOR BEDROOM
3.55m x 2.73m (11'7" x 8'11")
Window to front; fixed shelving; fitted carpet; inset ceiling spotlights.
STAIRCASE AND LANDING
Built-in storage cupboard with access hatch to the loft space; fitted carpet; inset ceiling spotlights.
BEDROOM 1
3.71m x 4.64m (12'2" x 15'2")
Window to front; two sets of double built-in wardrobes; fitted carpet; inset ceiling spotlights.
EN-SUITE SHOWER ROOM
2.30m x 1.12m (7'6" x 3'8")
Window to front; vanity mounted sink; WC and shower cubicle with mains shower; tile effect flooring; inset ceiling spotlights.
BEDROOM 2
3.15m x 2.89m (10'4" x 9'5")
Window to rear; double built-in wardrobes; fitted carpet; inset ceiling spotlights.
BEDROOM 3
3.43m x 2.76m (11'3" x 9'0")
Window to front; double built-in wardrobes; fitted carpet; inset ceiling spotlights.
BEDROOM 4
2.92m x 2.76m (9'6" x 9'0")
Window to rear; fitted carpet; inset ceiling spotlights.
FAMILY BATHROOM
2.90m x 1.90m (9'6" x 6'2")
Window to rear; vanity mounted sink: WC and shower cubicle with electric shower; tile effect flooring; inset ceiling spotlights.
DOUBLE INTEGRAL GARAGE
Electric up and over door; power and light.
OUTSIDE
The property is set in a substantial garden extending to around a third of an acre which is mainly lawn and planted with mature shrubs and trees. A substantial loc bloc driveway provides off street parking for several cars. Another area of ground extending to around quarter of an acre also belongs to Achmelvich and is grassed with some mature shrubs and trees.
NOTES
Included in the asking price: all carpets and fitted floor coverings; all light fittings; all bathroom, en-suite and guest WC fittings; the slot in electric cooker and integrated dishwasher in the kitchen.
By Separate Negotiation: The ride on lawnmower, the robot lawnmower and the American style fridge freezer.
Property location
Important Information for Prospective Purchasers
This schedule is intended only to help you decide whether to view the property. We always recommend you view the property personally.
The information is believed to be correct, but it is not warranted and is not to form part of any contract of sale. All dates, distances, areas and room sizes noted are approximate and for use as a general guide only. Prospective purchasers should satisfy themselves as to the working condition or otherwise of any equipment such as central heating or kitchen appliances.
This schedule should not be taken as a comment on the condition of the property. This is a matter for your surveyor and we recommend that once you have found a property you are interested in, you obtain a survey report. We can provide details of surveyors if required.
Interested parties are advised to note their interest through their solicitor as soon as possible so that they can be informed if a closing date is fixed. Noting interest does not place any obligation on the seller to set a closing date or to give any noted interests the opportunity to offer. Whilst every effort will be made to advise noted interests of any closing date set, this cannot be guaranteed.
No responsibility will be accepted for expenses incurred by parties who have noted interest but do not get an opportunity to offer, or for any expenses incurred traveling to properties which have been sold or withdrawn.
Harper Macleod handled both the sale of our previous property and the purchase of our new property. Throughout the sale process, Lisa kept us updated, had a very good grasp of the local market, and was great to deal with. Nicola, who handled all legal matters from the sale to the purchase of our current property, communicated fantastically and handled all matters very professionally. We would highly recommend the Harper Macleod team.



