Key details
- 1 Reception Room
- 4 Bedrooms
- 2 Bathrooms
- Council Tax Band: D
- Energy Efficiency: D (62)
Overview
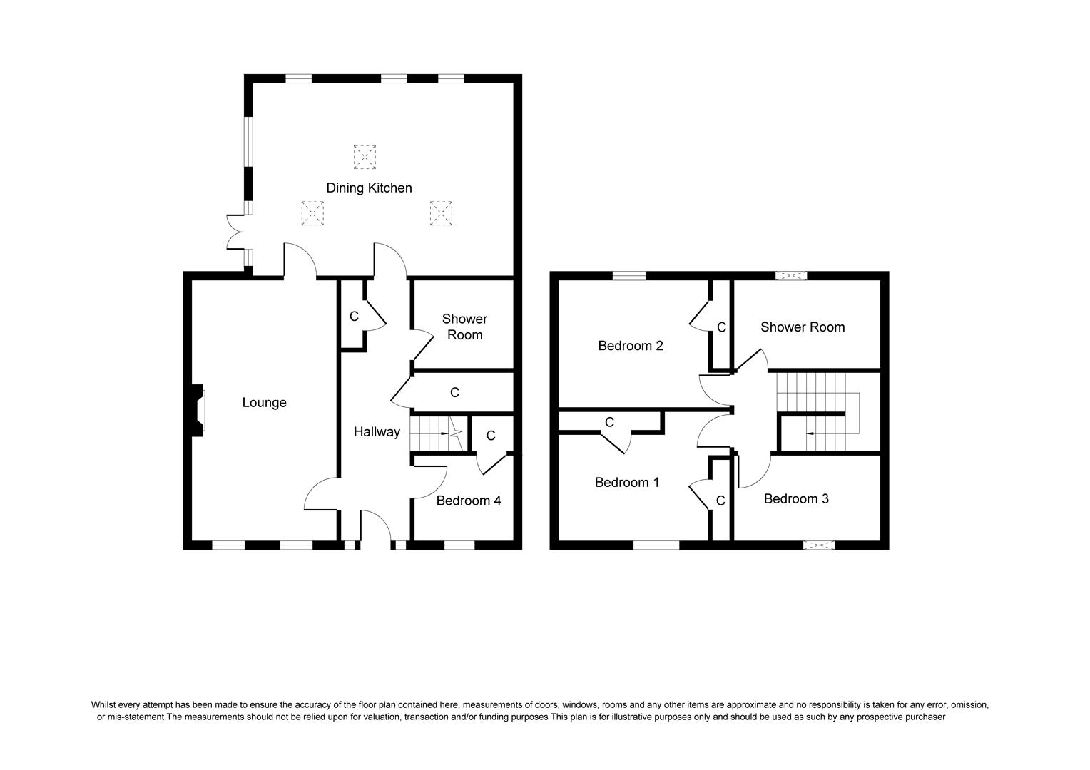
Modern semi detached house situated in a quiet cul-de-sac in the village of Garmouth. The deceptively spacious accommodation comprises entrance hallway, lounge, dining kitchen, four bedrooms and two shower rooms. The property further benefits from double glazing, oil central heating, driveway providing off street parking and fully enclosed front & rear gardens.
ENTRANCE HALLWAY
6.44m at longest x 1.31m at widest (21'1" at longest x 4'3" at widest)
UPVC and glazed door; inset ceiling spotlights; wood effect flooring; spacious under-stair storage cupboard with shelving & coat hooks; further built-in double storage cupboard with shelving; leads to lounge, bedroom 4, shower room, dining kitchen and the staircase to the first floor.
LOUNGE
6.06m at longest x 3.63m at widest (19'10" at longest x 11'10" at widest)
Two windows to front; two ceiling light fittings; wood effect flooring; open fireplace; wooden & glazed door leads to the dining kitchen.
BEDROOM 4
2.35m x 2.29m (7'8" x 7'6")
Window to front; ceiling light fitting; wood effect flooring; built-in under-stair storage space; electric consumer units.
SHOWER ROOM
3.20m at longest x 1.77m at widest (10'5" at longest x 5'9" at widest)
Velux window to rear; inset spotlights; tiled flooring; modern three piece suite comprising vanity mounted sink, WC and spacious walk-in shower cubicle with mains fed shower; chrome wall mounted towel radiator; mirror with LED lighting; built-in cupboard with shelving and housing the oil central heating boiler.
DINING KITCHEN
6.01m at longest x 4.47m at widest (19'8" at longest x 14'7" at widest)
Three windows to rear & one to side; three Velux skylights; inset ceiling spotlights; two wall light fittings; alcove with spotlight; wood effect flooring; modern fitted kitchen in a medium wood effect with lighting beneath wall units; belling electric range style cooker & hood; Smeg integrated dishwasher; integrated washing machine; space for fridge freezer; spacious dining area; patio doors lead out to the rear garden.
STAIRCASE & LANDING
Inset ceiling spotlights; fitted carpet; hatch to the loft space; leads to shower room and bedrooms 1, 2 & 3.
BEDROOM 2
4.13m at longest x 2.81m at widest (13'6" at longest x 9'2" at widest)
Window to side; ceiling light fitting; fitted carpet; double built-in wardrobe.
BEDROOM 1
4.34m at longest x 3.22m at widest (14'2" at longest x 10'6" at widest)
Window to front; ceiling light fitting; fitted carpet; double built-in mirrored wardrobe & triple built-in mirrored wardrobe.
BEDROOM 3
3.23m x 2.31m (10'7" x 7'6")
Velux window to front; ceiling light fitting; fitted carpet.
OUTSIDE
There is a paved area to the front of the property providing off street parking. The property is fully enclosed by fencing providing a good deal of privacy and is accessed by a wooden gate to the front. The front garden is laid to lawn with loc-bloc paving that leads round to the side and rear garden; oil tank. The side/rear garden is laid to a mix of lawn and loc-bloc paving; wooden garden shed.
NOTES
Included in the asking price is all carpet & fitted floor coverings, all light fittings, all shower room fittings, the oven & hood, integrated dishwasher & washing machine in the kitchen and the wooden shed in the garden.
Council Tax Band: D
Viewing Arrangements: Please contact selling agent on 01343 555 150
Property location
Get more information
Important Information for Prospective Purchasers
This schedule is intended only to help you decide whether to view the property. We always recommend you view the property personally.
The information is believed to be correct, but it is not warranted and is not to form part of any contract of sale. All dates, distances, areas and room sizes noted are approximate and for use as a general guide only. Prospective purchasers should satisfy themselves as to the working condition or otherwise of any equipment such as central heating or kitchen appliances.
This schedule should not be taken as a comment on the condition of the property. This is a matter for your surveyor and we recommend that once you have found a property you are interested in, you obtain a survey report. We can provide details of surveyors if required.
Interested parties are advised to note their interest through their solicitor as soon as possible so that they can be informed if a closing date is fixed. Noting interest does not place any obligation on the seller to set a closing date or to give any noted interests the opportunity to offer. Whilst every effort will be made to advise noted interests of any closing date set, this cannot be guaranteed.
No responsibility will be accepted for expenses incurred by parties who have noted interest but do not get an opportunity to offer, or for any expenses incurred traveling to properties which have been sold or withdrawn.
I was very happy with the service - Everything was done smoothly and efficiently and both of you were very approachable and had a friendly but professional manner. Sandra Glashan. Legal Dept. I was extremely happy with the service - You were great at keeping in touch and keeping me informed during the purchase of my first property, I can't fault the service that your provided. As a first time buyer you made it a very smooth transaction. Thank you so much



